Зарегистрирован в отраслевом реестре средств измерений МПС №МТ 032.2001
ОБЩИЕ СВЕДЕНИЯ
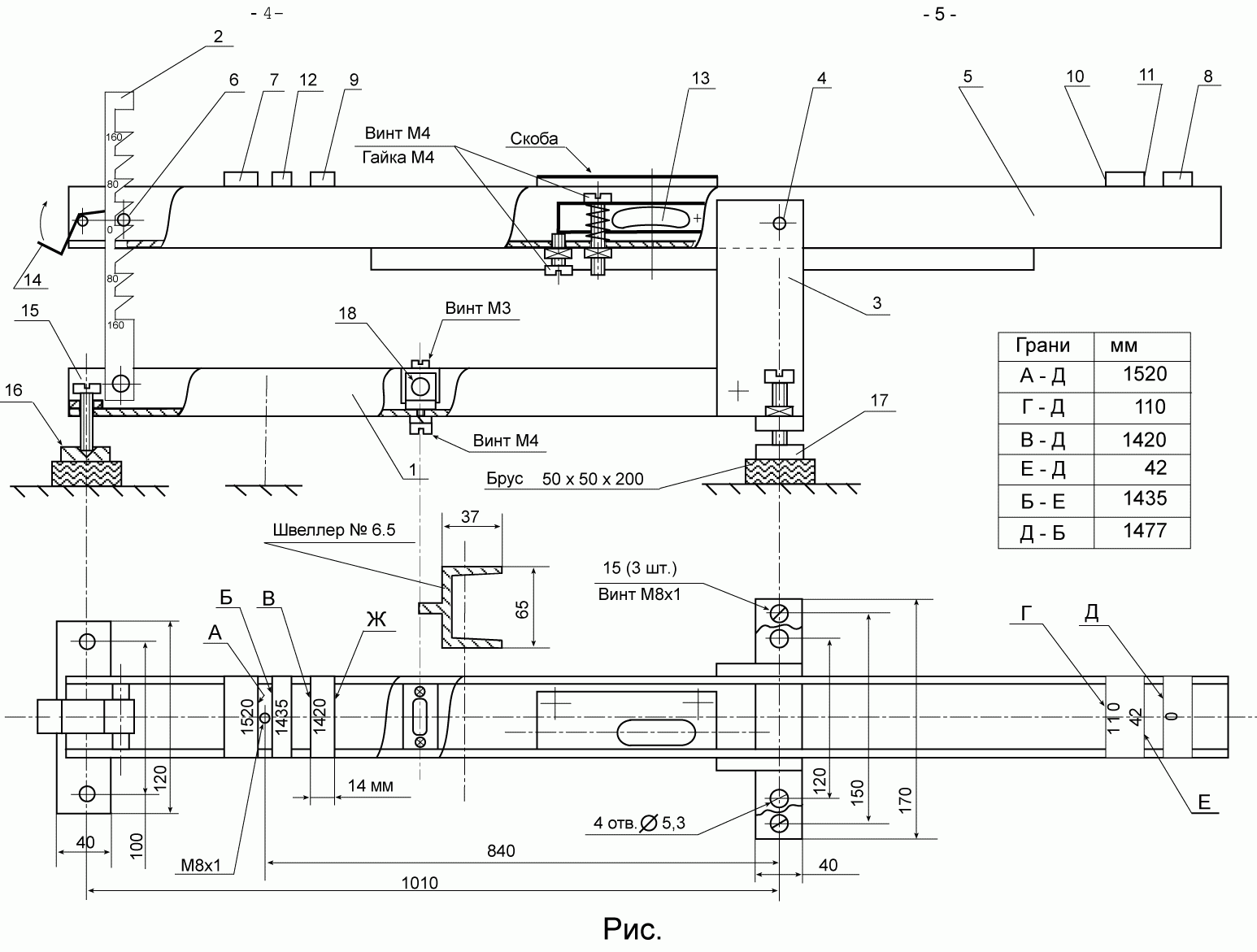
Стенд поверки путевых шаблонов СППШ-1 (в дальнейшем – стенд) предназначен для контроля и регулировки путевых шаблонов
типа ПШ-1520 (в дальнейшем - шаблонов).
Возможность контроля других типов путевых шаблонов определяет потребитель стендов.
Принцип действия – механический.
Стенд предназначен для установки в помещении.
Пример обозначения при заказе стенда: “Стенд поверки путевых шаблонов СППШ-1, ИНШК 290 ТУ”.
ОСНОВНЫЕ ТЕХНИЧЕСКИЕ ДАННЫЕ:
| Характеристика |
Параметр |
Воспроизводимые размеры: |
| - ширина колеи |
1510, 1520, 1530, 1540, 1550 мм |
| - уровень рельсов (приведенный к базе 1600 мм) |
0; ±40; ±80; ±120; ±160 мм |
| - ординаты переводных кривых |
110-1420 мм |
| - ширина желоба |
42 мм |
| - расстояние контррельс-усовик |
1435 мм |
| - боковой износ путевого рельса (справочный) |
0 мм |
| Остальные характеристики: |
|
| Погрешность измерения |
±0.3 мм |
| Габаритные размеры, не более |
1800 х 170 х 370 мм |
| Масса, не более |
30 кг |
| Средний срок службы |
10 лет |
|
Скачать:
| Паспорт: |
 |
| Рисунок для Паспорта: |
 |
| Руководство по эксплуатации: |
|
| Инструкция по калибровке: |
|
| Кинематическая схема инструкции: |
|
| Реклама (листовка): |
|
Иллюстрации: |
|
|